Type
Videregående skole med studiespesialisering, musikk, dans, drama med fordypning, og tilrettelagt avdeling
Oppdrag
Bevaring, rehabilitering og nybygg. Mulighetsstudie, detaljregulering, forprosjekt og gjennomføring
Sted
Briskeby, Bydel Frogner i Oslo
Utført
2018 – 2025
Oppdragsgiver
Undervisningsbygg Oslo KF
Areal
12 790 m2 BTA
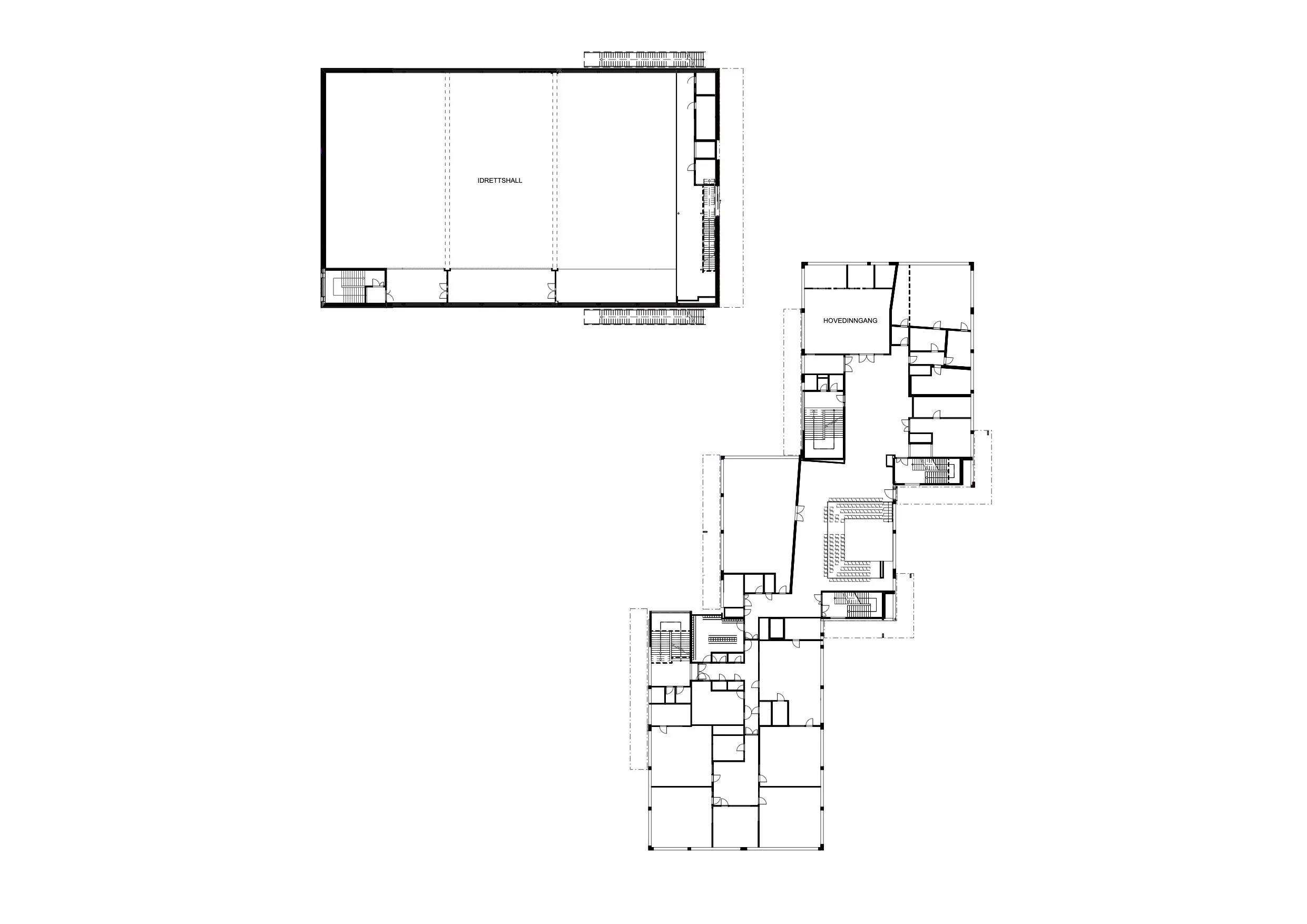
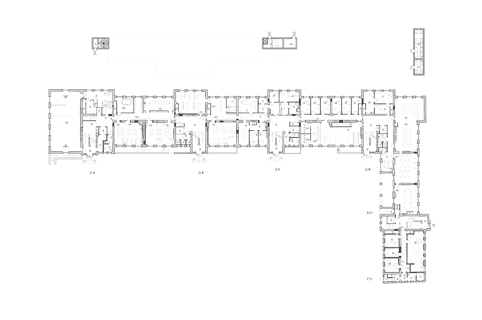
Hartvig Nissens skole i bydel Frogner er en videregående skole innen studiespesialisering og musikk, dans og drama. Det har vært skoler på tomten i mer enn 100 år, og skolen har høy kulturhistorisk verdi, både arkitektonisk og som pedagogisk institusjon. Eksisterende bygningsmasse er verneverdig og er oppført på Byantikvarens gule liste.
Skoleanlegget består av tre historiske skolebygg og to nybygg. Skolen har økt kapasitet med 90 elever, fra 680 til 770 elever. Totalrehabilitering av de gamle byggene har foregått i tett dialog med antikvariske myndigheter og omstrukturering av byggene er tilpasset dagens krav. Ny bebyggelse inneholder kroppsøvingsarealer under terreng mot Niels Jules gate og et nytt dramahus mot Gyldenløves gate. Dramahuset er plassert i liv med byvillaene i gaten, og tilpasset i høyde mot eksisterende skolebygg ved siden. Vindusplassering forholder seg til rytme i omkringliggende bebyggelse, og takform og materialer er tilpasset bymiljøet i Oslo indre by. For å bevare skolens sterke identitet har det vært viktig å skape sammenheng i form, materialer og fargebruk for hele skoleanlegget. Samtidig har det hatt stor betydning å skape et anlegg med høy brukbarhet som moderne skoleanlegg.
Omreguleringen av anlegget gjorde det samtidig mulig å stenge President Harbitz gate for trafikk gjennom skoleområdet, slik at skolens uteområde får et mer sammenhengende og uforstyrret preg. Det har vært fokus på å skape et helhetlig skoleanlegg med høy arkitektonisk kvalitet og attraktive byrom for elever og nærmiljø.
Foto: GASA & Tove Lauluten, Michelle Äärlaht, Nadia Frantsen, Veidekke
