Området Atelierhagen ligger ca. 1,2 km sør for Asker sentrum, i en nord-sørgående dal med Askerelva/Bondivannet i dalbunnen. Tomten avgrenses av Bondivann mot vest og Røykenveien mot øst, og er omgitt av etablerte boligområder på begge sider av Bondivannet.
Tomten er karakterisert av svært bratt terreng som heller fra øst mot vest, med en høydeforskjell på 27-29 meter over ca. 100m bredde. Terrenget flater ut langs bredden av Bondivann, i et felt som er regulert til naturvern.
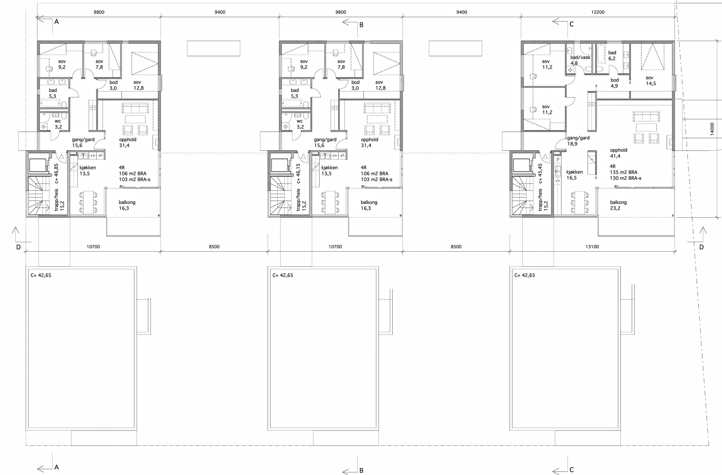
Prosjektet består av 131 boliger fordelt på 9 leilighetsbygg. Det er 4 punkthus og 5 lamellblokker, plassert i ulik rytme i tre rekker langs med- og delvis innfelt i terrenget. Bebyggelsen konsentreres i tomtens søndre del som en forlengelse av boligfeltet Bondistranda. Prosjektet skal sikre en sammenhengende naturvernsone mot Bondivann og den bratte naturlige nordenden av området. Ny og eksisterende bebyggelse vil legge beslag på ca. 40 % av eiendommens totale areal. Resterende 60% vil være bevarte naturområder og kultiverte grøntområder. Grepet muliggjør samtidig god avstand mellom leilighetsbyggene og den eksisterende kunstnerboligen, som får stå fritt som kulturbygg i et bearbeidet parkområde åpent for alle.
Boligprosjektet Atelierhagen er utformet med utgangspunkt i tomtens beskaffenhet, tilstøtende bebyggelse og kommunens overordnede boligbehov. Organisering og volumoppbygging er brukt som virkemiddel for å oppnå en variert og dempet fjernvirkning, en innholdsrik bebyggelse, og for å ivareta viktige naturkvaliteter. Det etableres et robust og inkluderende bomiljø med et rikt boligtilbud og rause fellesarealer som tilrettelegger for naboskap og samhold. Gjennom bruk av naturmaterialer, innlevd detaljering og fargebruk er prosjektet gitt en arkitektonisk utforming som harmonerer med tomtens naturkvaliteter, og fremstår lun og hjemlig. Prosjektet revitaliserer det historiske kunstnertunet og dets nære omgivelser som arena for kulturutøvelse for nærmiljøet samt besørger utbedring av gang- og sykkelveinettet og universelt utformede gangforbindelser på tvers av det bratte landskapet.
Illustrasjoner: Plyo/Atelierhagen AS
Type
Bolig
Oppdrag
Detaljregulering, forprosjekt, rammesøknad og salgstegninger
Sted
Bondivann ved Asker
Utført
2014 - pågår
Oppdragsgiver
Atelierhagen AS, (ABBL og Backe Prosjekt)
Areal
14900 m2 BRA fordelt på 131 boliger og tilhørende fellesarealer
Samarbeidspartner
Bjørbekk & Lindheim landskapsarkitekter
